Första utkast från Alingsås Huspaket

Idag fick vi första skissen från Alingsås Huspaket. De har hållt på för fullt innan de gick på semester och tänkte att de kunde skicka det de har gjort för att vi skulle kunna se över det under semestern. Vad de har gjort är att ta vår skiss och gjort så att den stämmer överens med regulationer och rekommendationer. Tex måste sovrummet vara bredare än i vår orginalskiss. Men detta är perfekt, för nu kan vi se över det i lugn och ro och ha alla våra ändringar klara tills när de kommer tillbaka från semestern 🙂

Vad vi tänker behövs ändras:

  • Minska entrén då den är onödigt stor, men för att också göra plats för dörr ut till det kommande uterummet (bredvid köket)

  • Även fixa till entrén utåt sett då vi vill ha något slags tak över dörren

    • Detta kan vara med hjälp av en pelare eller bara genom att snygga till den nuvarande designen

  • Badrummet som det ser ut nu behövs fixas till. Just nu så känns den väldigt smal och hur vi har tänkt att placera saker går inte riktigt ihop. Gissar att detta är resultatet av att de breddade vårt sovrum..

  • Garderoben vill vi också ändra

  • Placering av fönstren, dess storlek och hur många ska ses över då va placerade de flesta lite på måfå

  • Dörren ut från köket till uterummet är helt borta, något som vi måste ha med för att kunna få rätt flöde där.

  • Ta en extra omgång i hur vi placerar tvättstuga och badrum på nedervåningen. Dvs testa om man kan placera de på ett annat sätt

  • Just nu ser det ut som om alla väggar är samma storlek, detta är något vi måste dubbelkolla om det stämmer och isåfall om man vill ha extra ljudisolering någonstans.

Sen kommer det säkert fram mängder av ideer när vi väl håller på :)

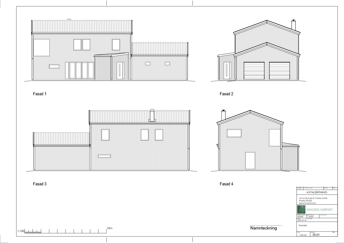
Vi fick en lätt dator rendering utav utsidan vilket vi gillar skarpt, den ser riktigt härlig ut och entrén ger den ett lite extra unikt utseende, något vi varit ute efter. Färgen på panelen stämmer dock inte då den ska vara mer åt det brun/grå hållet och fönstren, dörrarna och taket ska vara svarta.

3D vy.png
hus.png
Tobias Dahl